Построим дом,по каркасной технологии.
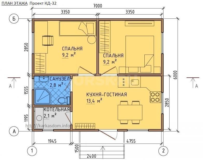
42 м2. ( 6*7)
Кухня гостиная
Спальня 2 шт.
С.у.
Котельная.
В стоимость дома входят окна определенного размера.
Входная дверь
Разводка электрики (в каждой комнате розетка включатель)
Дом круглогодичного проживания.
Можно заезжать жить и постепенно делать ремонт.
( Наружная отделка и внутряная обговаривается отдельно.)
Предложение действительно на ноябрь месяц.
1 300 000
ID: 3708071
Город: Орск
Контактное лицо Максим 8 (905) 888 34 60

Пожалуйста, скажите продавцу, что вы нашли это объявление на сайте orsk.ru!

Создано 04.11.2025 12:48
Действительно до 04.12.2025 12:48


Повысьте эффективность объявления!